如图,朵朵从家去学校,如果只能向北或向东走,那么一共有多少种不同的路线?

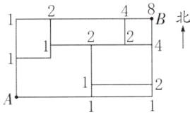
[解析]方法一:画枝形图列举。如图,先将每个交叉点标上字母或数字,然后有序列举出所有路线。

方法二:用标数法计算。
根据题目的要求,按照向北或向东的路线,在只有1条路线的交叉点处标出1(如图)。

剩下的交叉点的路线总数等于通过该点左方和下方相邻交叉点的路线的总和(如图)。

[答案]一共有5种不同的路线
点评:解答路线问题时,比较简单的可以直接描线找,复杂的可以画枝形图列举或标数计算,其中标数计算的方法更快捷。
[解析]方法一:画枝形图列举。如图,先将每个交叉点标上字母或数字,然后有序列举出所有路线。
方法二:用标数法计算。
根据题目的要求,按照向北或向东的路线,在只有1条路线的交叉点处标出1(如图)。
剩下的交叉点的路线总数等于通过该点左方和下方相邻交叉点的路线的总和(如图)。
[答案]一共有5种不同的路线
点评:解答路线问题时,比较简单的可以直接描线找,复杂的可以画枝形图列举或标数计算,其中标数计算的方法更快捷。
答案:
解析:本题可根据题目所给的两种方法(画枝形图列举法和标数法)来分析解题过程,本题要求的是从朵朵家去学校,只能向北或向东走的不同路线数量。
方法一:画枝形图列举
先将图中每个交叉点标上字母或数字,然后有序列举出所有路线。
从图中可以看出,通过有序列举得到的路线有:
路线1:$A→B→C→F→I$;
路线2:$A→B→E→F→I$;
路线3:$A→B→E→H→I$;
路线4:$A→D→G→H→I$;
路线5:$A→D→M→H→I$。
方法二:标数法计算
根据题目要求,按照向北或向东的路线,在只有 1 条路线的交叉点处标出 1。
从朵朵家出发,最开始朵朵家位置标 1。
然后看其相邻的点,因为只能向北或向东走,朵朵家右边(向东)和上边(向北)的点都只有 1 条路线到达,所以都标 1。
对于其他交叉点,其路线总数等于通过该点左方和下方相邻交叉点的路线的总和。
例如,点$M$左方是点$D$(标 1),下方是朵朵家(标 1),所以点$M$标$1 + 1=2$;
点$F$左方是点$C$(标 1),下方是点$E$(标 1),但点$E$的路线数是由其左方和下方点路线数之和得到的(这里先看直接相邻的),点$F$通过计算标 2;
点$H$左方是点$M$(标 2),下方是点$E$(标 1),所以点$H$标$2 + 1=3$;
点$I$(学校位置)左方是点$F$(标 2),下方是点$H$(标 3),但通过逐步计算,从朵朵家到点$I$的总路线数为 5。
答案:一共有 5 种不同的路线。
方法一:画枝形图列举
先将图中每个交叉点标上字母或数字,然后有序列举出所有路线。
从图中可以看出,通过有序列举得到的路线有:
路线1:$A→B→C→F→I$;
路线2:$A→B→E→F→I$;
路线3:$A→B→E→H→I$;
路线4:$A→D→G→H→I$;
路线5:$A→D→M→H→I$。
方法二:标数法计算
根据题目要求,按照向北或向东的路线,在只有 1 条路线的交叉点处标出 1。
从朵朵家出发,最开始朵朵家位置标 1。
然后看其相邻的点,因为只能向北或向东走,朵朵家右边(向东)和上边(向北)的点都只有 1 条路线到达,所以都标 1。
对于其他交叉点,其路线总数等于通过该点左方和下方相邻交叉点的路线的总和。
例如,点$M$左方是点$D$(标 1),下方是朵朵家(标 1),所以点$M$标$1 + 1=2$;
点$F$左方是点$C$(标 1),下方是点$E$(标 1),但点$E$的路线数是由其左方和下方点路线数之和得到的(这里先看直接相邻的),点$F$通过计算标 2;
点$H$左方是点$M$(标 2),下方是点$E$(标 1),所以点$H$标$2 + 1=3$;
点$I$(学校位置)左方是点$F$(标 2),下方是点$H$(标 3),但通过逐步计算,从朵朵家到点$I$的总路线数为 5。
答案:一共有 5 种不同的路线。
1. 如图,小玲从家到电影院,如果只允许向东或向南走,那么一共有多少种不同的路线?

答案:
1. 10种 解析:根据题意,可画图如下。
1. 10种 解析:根据题意,可画图如下。
2. 如图,小明从学校回家,如果只能向北或向西走,那么一共有多少种不同的路线?

答案:
2. 13种 解析:根据题意,可画图如下。
2. 13种 解析:根据题意,可画图如下。
3. 如图,从点A处到点B处有很多条道路,其中点C处修路不通,从点A处到点B处现在最短的路线一共有多少种?

答案:
3. 8种 解析:因为点C处修路不通,所以可将原图进行修改(如图)。
要使路线最短,则只能向北或向东走。由图可知,共有8种。
3. 8种 解析:因为点C处修路不通,所以可将原图进行修改(如图)。
要使路线最短,则只能向北或向东走。由图可知,共有8种。
4. 如图,从上往下,沿线读出“努力学习好数学”。一共有多少种不同的路线?

答案:
4. 20种 解析:根据题意,可画图如下。
4. 20种 解析:根据题意,可画图如下。
查看更多完整答案,请扫码查看