2025年暑假园地知识出版社三年级数学人教版
注:目前有些书本章节名称可能整理的还不是很完善,但都是按照顺序排列的,请同学们按照顺序仔细查找。练习册 2025年暑假园地知识出版社三年级数学人教版 答案主要是用来给同学们做完题方便对答案用的,请勿直接抄袭。
1. 边长是(
1厘米
)的正方形,面积为 1 平方厘米。例如,(成人的指甲盖
)的面积大约是 1 平方厘米。边长是(1分米
)的正方形,面积就是 1 平方分米。在 1 平方米的正方形地面上大约可以站(10
)个 10 岁的同学。
答案:
1厘米 成人的指甲盖 1分米 10(画线部分答案不唯一,符合题意即可)
2. 长方形的面积=(
长
)×(宽
),正方形的面积=(边长
)×(边长
)。
答案:
长 宽 边长 边长
3. 一个长方形长 5 厘米,宽 3 厘米,它的面积是(
15平方厘米
),周长是(16厘米
)。
答案:
15平方厘米 16厘米
4. 一个正方形的边长是 15 厘米,它的面积是(
225
)平方厘米。
答案:
225
5. 一个长方形长 12 厘米,宽 10 厘米。如果宽增加(
2
)厘米,它就成了一个正方形。
答案:
2
二、判一判。(对的画“√”,错的画“×”)
1. 面积是 1 平方米的图形一定是正方形。 (
2. 边长为 4 米的正方形,它的面积和周长一样大。 (
3. 用 8 厘米铁丝围成的正方形要比围成的长方形面积大。 (
4. 用 12 个一样大的小正方形拼长方形,只能拼出一种长方形。 (
1. 面积是 1 平方米的图形一定是正方形。 (
×
)2. 边长为 4 米的正方形,它的面积和周长一样大。 (
×
)3. 用 8 厘米铁丝围成的正方形要比围成的长方形面积大。 (
√
)4. 用 12 个一样大的小正方形拼长方形,只能拼出一种长方形。 (
×
)
答案:
1. × 2. × 3. √ 4. ×
三、选一选。
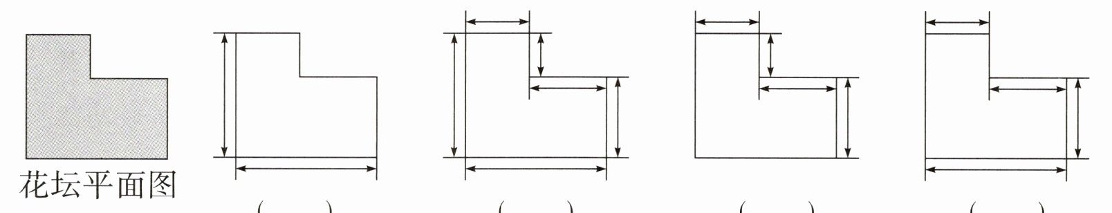
一项数学实践性作业要求同学们测算花坛面积。图中标了箭头符号的是同学们准备测量的数据,你觉得运用哪组数据可以计算出花坛的总面积? 可以的,请在括号里画“√”。
( ) (

一项数学实践性作业要求同学们测算花坛面积。图中标了箭头符号的是同学们准备测量的数据,你觉得运用哪组数据可以计算出花坛的总面积? 可以的,请在括号里画“√”。
( ) (
√
) (√
) ( )
答案:
( )(√)(√)( )
1. 一块一面靠墙的长方形菜地周围围着一道篱笆(如图),这道篱笆总长 1300 米,已知这块菜地长 500 米,它的面积是
200000
平方米?
答案:
$1300 - 500 = 800$(米) $800 ÷ 2 × 500 = 400 × 500 = 200000$(平方米) 面积是200000平方米。
查看更多完整答案,请扫码查看