2025年全优少年课时训练三年级数学下册北师大版
注:目前有些书本章节名称可能整理的还不是很完善,但都是按照顺序排列的,请同学们按照顺序仔细查找。练习册 2025年全优少年课时训练三年级数学下册北师大版 答案主要是用来给同学们做完题方便对答案用的,请勿直接抄袭。
1.(1)我们数学书封面的大小就是数学书的封面的( )。
(2)课桌的桌面面积比黑板的面积( )。(填“大”或“小”)
(2)课桌的桌面面积比黑板的面积( )。(填“大”或“小”)
答案:
(1)面积
(2)小
(1)面积
(2)小
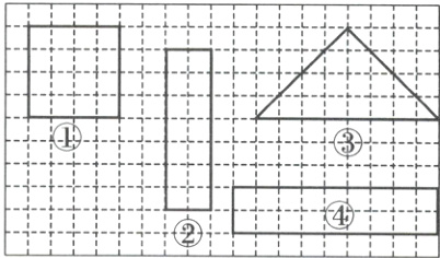
2. 比一比,右图中各图形的面积。
( )的面积最大,( )的面积最小。
( )和( )的面积一样大。

( )的面积最大,( )的面积最小。
( )和( )的面积一样大。
答案:
④ ② ① ③
3. 判一判。
(1)要比较两个平面图形面积的大小,可以用画格子的方法来比较,格子可以画得不一样大。 ( )
(2)用两根同样长的绳子围成两个不同的形状,它们的面积相等。 ( )
(1)要比较两个平面图形面积的大小,可以用画格子的方法来比较,格子可以画得不一样大。 ( )
(2)用两根同样长的绳子围成两个不同的形状,它们的面积相等。 ( )
答案:
(1)×
(2)×
(1)×
(2)×
4. 数一数,填一填。
涂色部分的面积是( )个小方格。
画线部分的面积是( )个小方格。
白色部分的面积是( )个小方格。

涂色部分的面积是( )个小方格。
画线部分的面积是( )个小方格。
白色部分的面积是( )个小方格。
答案:
5 5 6
5. 下面是小狗和小猫的拼图,谁的面积较大?

( )的面积较大。
( )的面积较大。
答案:
小猫
查看更多完整答案,请扫码查看