2025年全优少年课时训练三年级数学下册北师大版
注:目前有些书本章节名称可能整理的还不是很完善,但都是按照顺序排列的,请同学们按照顺序仔细查找。练习册 2025年全优少年课时训练三年级数学下册北师大版 答案主要是用来给同学们做完题方便对答案用的,请勿直接抄袭。
1. 在( )里填上“平移”或“旋转”。
(1)使用电风扇时,扇叶的运动是( )。
(2)小风车的迎风运动是( )。
(3)举重运动员在举重时的运动是( )。
(4)汽车向前行驶,车身的运动是( )。
(1)使用电风扇时,扇叶的运动是( )。
(2)小风车的迎风运动是( )。
(3)举重运动员在举重时的运动是( )。
(4)汽车向前行驶,车身的运动是( )。
答案:
(1)旋转
(2)旋转
(3)平移
(4)平移
(1)旋转
(2)旋转
(3)平移
(4)平移
2. 如右下图,要想正好铺满最下面两层,图①需要进行怎样的平移?下列说法正确的是( )。

A. 先向右平移2格,再向下平移2格
B. 先向右平移2格,再向下平移3格
C. 先向右平移2格,再向下平移4格
A. 先向右平移2格,再向下平移2格
B. 先向右平移2格,再向下平移3格
C. 先向右平移2格,再向下平移4格
答案:
B
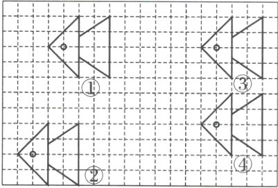
3. 看图填一填。
(1)图形①先向( )平移( )格,再向( )平移( )格得到图形②。
(2)图形①向( )平移( )格得到图形③。
(3)图形①先向( )平移( )格,再向( )平移( )格得到图形④。
(1)图形①先向( )平移( )格,再向( )平移( )格得到图形②。
(2)图形①向( )平移( )格得到图形③。
(3)图形①先向( )平移( )格,再向( )平移( )格得到图形④。
答案:
(1)左 2 下 7(或下 7 左 2)
(2)右 10
(3)右 10 下 5(或下 5 右 10)
(1)左 2 下 7(或下 7 左 2)
(2)右 10
(3)右 10 下 5(或下 5 右 10)
4. 仔细观察右面的转盘,然后填空。
(1)小猴转( )格就可以转到小鹿现在的位置。
(2)小马转( )格就可以转到小狗现在的位置。
(3)当小鹿转到小马的位置时,小猴就转到( )现在的位置,小狗就转到( )现在的位置。
(1)小猴转( )格就可以转到小鹿现在的位置。
(2)小马转( )格就可以转到小狗现在的位置。
(3)当小鹿转到小马的位置时,小猴就转到( )现在的位置,小狗就转到( )现在的位置。
答案:
(1)4
(2)4
(3)小狗 小鹿
(1)4
(2)4
(3)小狗 小鹿
查看更多完整答案,请扫码查看