1. 在同一平面内,两条直线的位置关系有(
相交
)和(平行
)两种。
答案:
相交 平行
2. 平行四边形的特性是(
容易变形
)。
答案:
容易变形
3. 黑板的上下两边互相(
平行
),相邻的两边互相(垂直
)。
答案:
平行 垂直
4. 一个平行四边形两条邻边的长分别是 10 厘米和 8 厘米,这个平行四边形的周长是(
36
)厘米。
答案:
36
二、判一判。(正确的画“√”,错误的画“×”。)(12 分)
1. 在同一平面内,垂直于同一条直线的两条直线一定平行。(
2. 在梯形中,每组对边的长都一定不相等。(
3. 平行四边形的高和对应的底互相垂直。(
4. 用一副三角尺可以拼成一个平行四边形。(
5. 平行四边形只有一条高。(
6. 有一组对边平行的四边形叫作梯形。(
1. 在同一平面内,垂直于同一条直线的两条直线一定平行。(
√
)2. 在梯形中,每组对边的长都一定不相等。(
×
)3. 平行四边形的高和对应的底互相垂直。(
√
)4. 用一副三角尺可以拼成一个平行四边形。(
×
)5. 平行四边形只有一条高。(
×
)6. 有一组对边平行的四边形叫作梯形。(
×
)
答案:
1.√ 2.× 3.√ 4.× 5.× 6.×
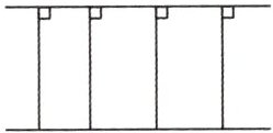
1. 如下图,在两条平行线之间有 4 条垂直线段,这 4 条垂直线段的长度之间的关系是(

A.相等
B.不相等
C.不能确定
A
)。A.相等
B.不相等
C.不能确定
答案:
A
2. 如右图,3 架飞机同时飞往欢乐岛,如果它们的飞行速度相同,(

A.①
B.②
C.③
B
)号飞机最先到达,(C
)号飞机最后到达。A.①
B.②
C.③
答案:
B C
3. 在同一平面内,过直线外一点,可以画(
A.1
B.2
C.无数
A
)条直线与已知直线垂直。A.1
B.2
C.无数
答案:
A
4. 一张长方形纸对折两次后展开,折痕(
A.互相平行
B.互相垂直
C.可能互相平行,也可能互相垂直
C
)。A.互相平行
B.互相垂直
C.可能互相平行,也可能互相垂直
答案:
C
5. 下列叙述错误的一项是(
A.一个梯形,它所有的高都相等
B.一个平行四边形,它所有的高都相等
C.梯形的上底和下底不能等长
B
)。A.一个梯形,它所有的高都相等
B.一个平行四边形,它所有的高都相等
C.梯形的上底和下底不能等长
答案:
B
四、下面的各组直线,互相垂直的画“○”,互相平行的画“△”。(12 分)

() (
() (
○
) (△
) (○
) (△
) ()
答案:
( )(○)(△)(○)(△)( )
查看更多完整答案,请扫码查看