2025年赢在假期期末加暑假合肥工业大学出版社三年级数学人教版
注:目前有些书本章节名称可能整理的还不是很完善,但都是按照顺序排列的,请同学们按照顺序仔细查找。练习册 2025年赢在假期期末加暑假合肥工业大学出版社三年级数学人教版 答案主要是用来给同学们做完题方便对答案用的,请勿直接抄袭。
例题 周末,小月、小华、小丽决定去福利院参加义务劳动。下面是他们三家与福利院位置的平面示意图。

(1)小月从家向
(2)小丽从家向
(3)小华从家向
(4)小丽义务劳动完之后想去小月家,应该怎样走呢?
(1)小月从家向
东南
走500
米,再向南
走100
米到达福利院。(2)小丽从家向
西南
走300
米,再向西
走400
米到达福利院。(3)小华从家向
东北
走300
米,再向北
走200
米到达福利院。(4)小丽义务劳动完之后想去小月家,应该怎样走呢?
小丽应从福利院先向北走100米,再向西北走500米才能到小月家。
答案:
分析 要想准确描述各位小朋友去福利院的行走路线,必须明确小朋友所走路线的方向及所走的路程。小月从家去福利院要经过商店,而商店在小月家的东南方,福利院又在商店的正南方。所以小月从家去福利院应先向东南方向走500米到达商店,再向南走100米到达福利院。同样方法可确定小丽、小华从家去福利院所走的路线。小丽义务劳动完之后想去小月家,也就是从福利院去小月家,她所走的路线与小月从家去福利院所走的路线方向正好相反。
解答
(1)小月从家向东南走500米,再向南走100米到达福利院。
(2)小丽从家向西南走300米,再向西走400米到达福利院。
(3)小华从家向东北走300米,再向北走200米到达福利院。
(4)小丽应从福利院先向北走100米,再向西北走500米才能到小月家。
解答
(1)小月从家向东南走500米,再向南走100米到达福利院。
(2)小丽从家向西南走300米,再向西走400米到达福利院。
(3)小华从家向东北走300米,再向北走200米到达福利院。
(4)小丽应从福利院先向北走100米,再向西北走500米才能到小月家。
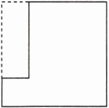
例题 求下面图形的面积。

答案:
方法一
分析 可把题中的图形用线段分成一个长方形和一个正方形(如右图)。然后分别求出分割后的长方形和正方形的面积,再把它们的面积相加就是整个图形的面积。

解答 $12×12+36×48= 1872$(平方厘米)
方法二
分析 把题中的图形分割成右图的两个图形,分割后上面的图形一条边长36厘米,另一条边长$48-12= 36$(厘米),是个正方形。下面是个长方形,长$12+36= 48$(厘米),宽12厘米。再根据长方形和正方形的面积公式求出长方形和正方形的面积,然后把它们的面积相加,就能求出整个图形的面积。

解答 $36×(48-12)= 1296$(平方厘米)
$12×(36+12)= 576$(平方厘米)
$1296+576= 1872$(平方厘米)
方法三
分析 把整个图形加两条辅助线,补充成一个大图形(如下图)。

组成的新图形一条边长48厘米,另一条边长$36+12= 48$(厘米),可见组成的新图形是正方形。只要从正方形的面积里减去虚线添补成的长方形的面积,就能得出原来图形的面积。
解答 $48×(36+12)= 2304$(平方厘米)
$12×(48-12)= 432$(平方厘米)
$2304-432= 1872$(平方厘米)
方法一
分析 可把题中的图形用线段分成一个长方形和一个正方形(如右图)。然后分别求出分割后的长方形和正方形的面积,再把它们的面积相加就是整个图形的面积。
解答 $12×12+36×48= 1872$(平方厘米)
方法二
分析 把题中的图形分割成右图的两个图形,分割后上面的图形一条边长36厘米,另一条边长$48-12= 36$(厘米),是个正方形。下面是个长方形,长$12+36= 48$(厘米),宽12厘米。再根据长方形和正方形的面积公式求出长方形和正方形的面积,然后把它们的面积相加,就能求出整个图形的面积。
解答 $36×(48-12)= 1296$(平方厘米)
$12×(36+12)= 576$(平方厘米)
$1296+576= 1872$(平方厘米)
方法三
分析 把整个图形加两条辅助线,补充成一个大图形(如下图)。
组成的新图形一条边长48厘米,另一条边长$36+12= 48$(厘米),可见组成的新图形是正方形。只要从正方形的面积里减去虚线添补成的长方形的面积,就能得出原来图形的面积。
解答 $48×(36+12)= 2304$(平方厘米)
$12×(48-12)= 432$(平方厘米)
$2304-432= 1872$(平方厘米)
查看更多完整答案,请扫码查看